Publications
Papers and Patents
* means corresponding author

Huiguang Wang, Jiayao Zou, Shuo Wang, Yu Dai, Shaopeng Xu, Lu Deng*
[Code]

Huiguang Wang, Yi Shao*
[Tutorial & Code]
[Demo]

Shaopeng Xu, Jingjing Guo, Huiguang Wang, Lu Deng, Peng Shi, Lizhi Long
[Tutorial & Code]
[Demo]

Huiguang Wang, Shaopeng Xu, Lu Deng
[Tutorial & Code]
[Demo]

Lu Deng, Yu Dai, Shaopeng Xu, Ran Cao, Huiguang Wang*
[Tutorial & Code]
[Demo]

Shaopeng Xu, Huiguang Wang, Xiaoyi Lv, Lu Deng, Bo Jin, Jingjing Guo
International Symposium on Automation and Robotics in Construction, ISARC 2025 (EI compendex)


Lu Deng, Huiguang Wang, Ran Cao, Jingjing Guo
Automation in Construction, Impact Factor: 11.5 (SCI, Q1)
[Demo]
[Tutorial & Code]
[PDF]

Lu Deng, Huiguang Wang, Ran Cao, Jingjing Guo
[PDF]

Huiguang Wang, Lu Deng, Ran Cao, Jingjing Guo
International Symposium on Automation and Robotics in Construction, ISARC 2024 (EI compendex)
[PDF]
[Demo]
[Presentation]
[Code]

(NO. CN 117102725 B, 2024-01-09)
Lu Deng, Huiguang Wang, Ran Cao, Xun Zuo
[PDF]

Dean Li, Zuocai Wang, Huiguang Wang, Dashuai Jin
Journal of Hefei University of Technology (Natural Science), 2022-09
[PDF]

Liheng Tang, Huiguang Wang, Zihao Zhou, Shuanglong Yan, Zuocai Wang
Hans Journal of Civil Engineering, 2022-11
[PDF]

(NO. CN 216838937 U, 2022-06-28)
Zuocai Wang, Xiaotong Sun, Zihao Zhou, Liheng Tang, Huiguang Wang
[PDF]
New publications will come soon!🚀🚀🚀
Thesis

Supervisor: Prof. Lu Deng
[Dissertation]

Supervisor: Prof. Zhang Liang and Prof. Yulong Feng
[Dissertation]
[Drawings]
Design Work

Abstract: This competition include the design of BIM model, structural analysis, and the detailed design of components.
[Demo]

Abstract: The content of this competition include the design of BIM model, structural analysis, and renderings of the designed bridge.
[Renderings]
[Paper]
[Slides]

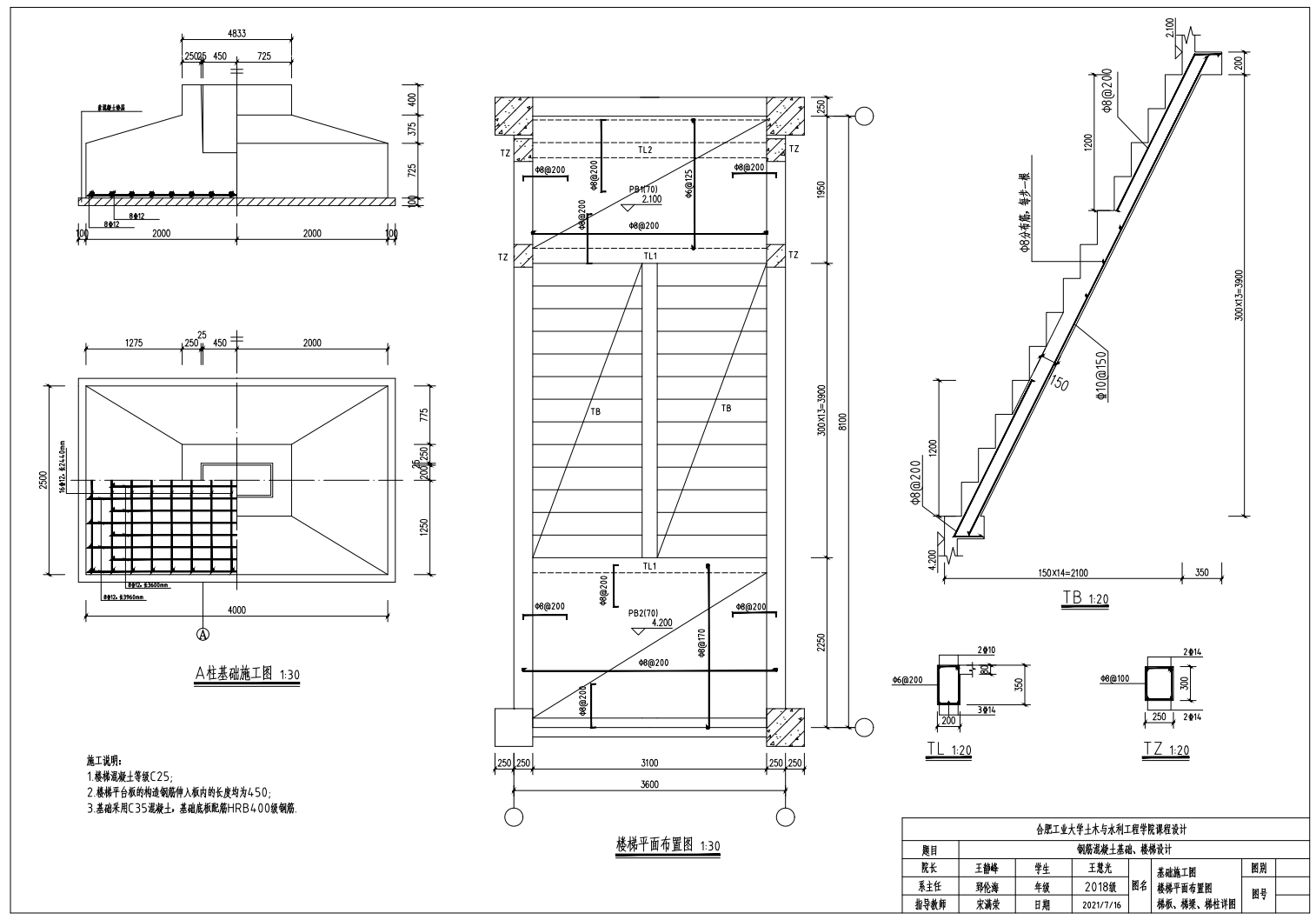
Abstract: This curriculum design mainly focus on the foundation design of an office building.
[The Design and Analysis of the Foundation]
[Drawings]

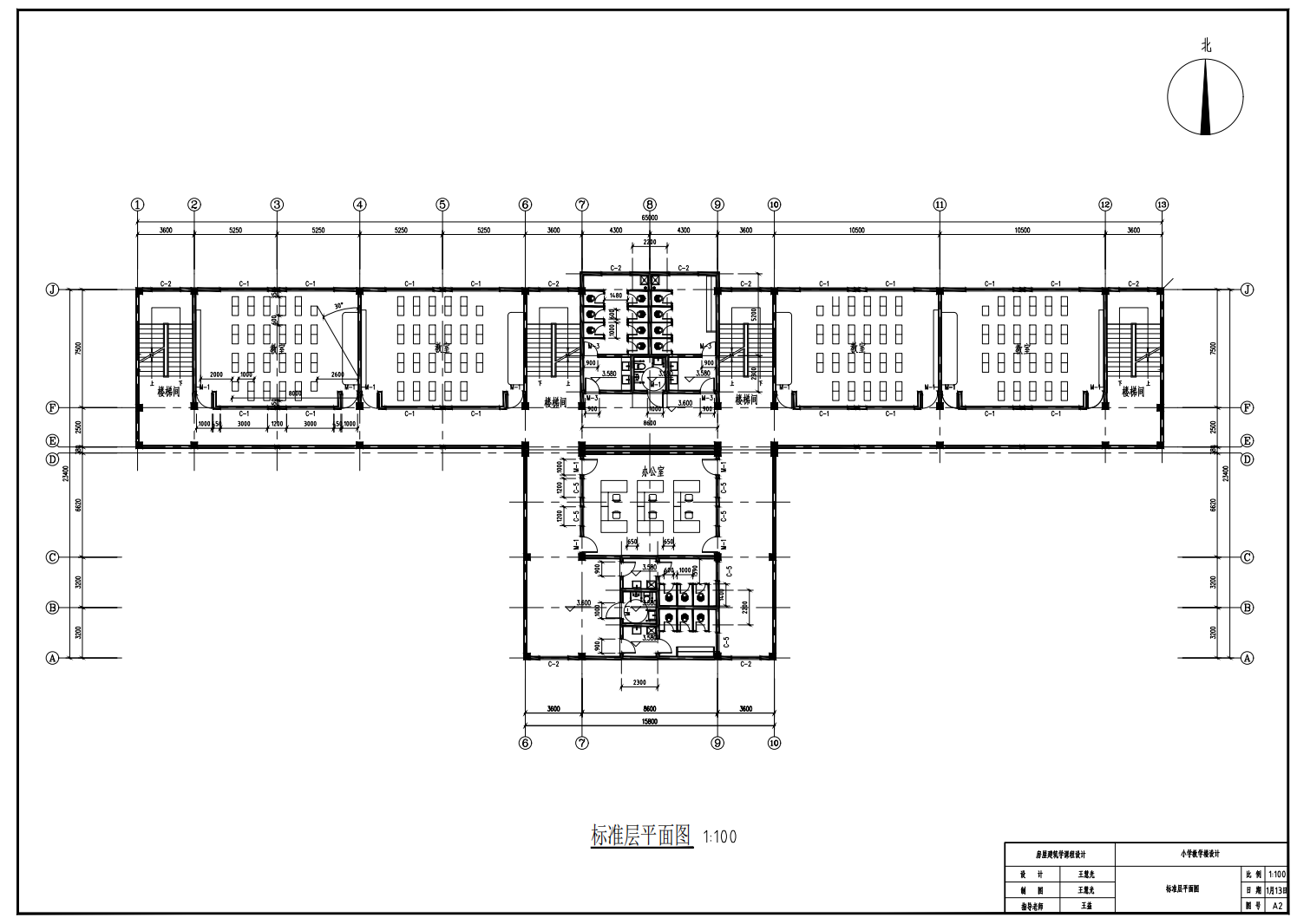
Abstract: This course design mainly focus on the architecture design of a teaching building of an elementary school.
[Drawings]

Abstract: This course design mainly focus on the design of a steel structure roof truss.
[Drawings]

Abstract: This course design mainly focus on the design of a concrete structure plant.
[Drawings]
Leave a comment